Description
• Single-slope roof with 26' eave height on the low side and 31' on the high side • Two (16' x 16') grade-level roll-up doors • Power supply: 3-phase, 480 volts, 400 amps • Concrete-fenced outdoor storage yard • Conveniently located near SH 249 and the Grand Parkway
Lease Details
- Lease Length
Negotiable
- Category
warehouse
- Tenancy
Single
- Space Name
Building 5
- Lease Rate Type
Yearly
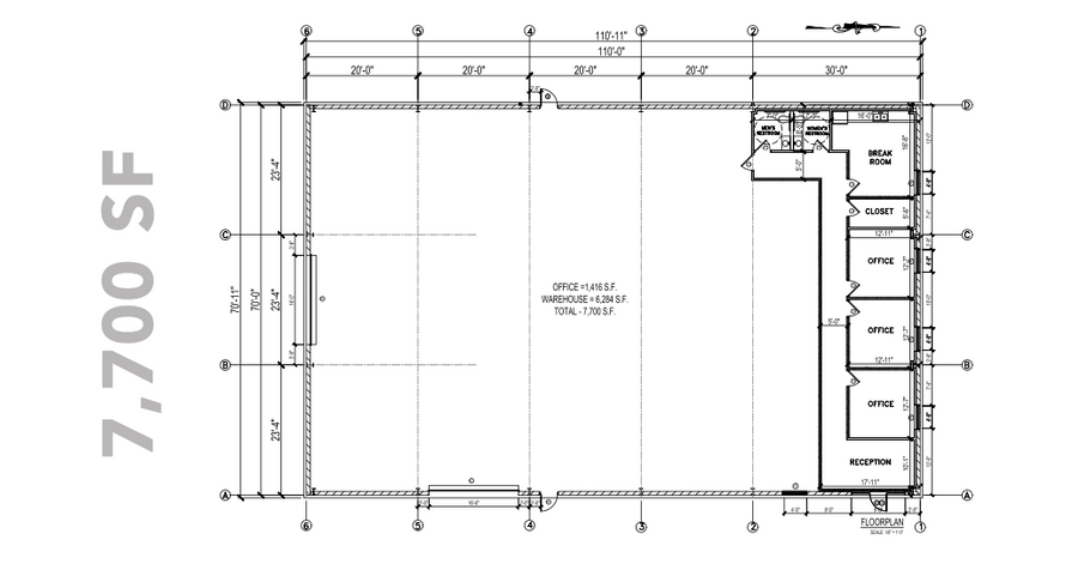
- Gross Leasable Area
7,700 SF
- Total Lease Rate
Undisclosed
- Lot Size
9.5 AC
- Property Class
B
- No of Stories
1
- Ceiling Height / Slab to Slab
31 Ft
- Space Location
15036 Boudreaux Rd, Tomball, TX 77377, USA
Property Details
- Total Building Space
7,700 SF
- No of Spaces/Suites
1
- Year Built
2024
Property Amenities
Unit Amenities
Fenced Lot
High Ceilings
Onsite Parking
Location Amenities
Airport
Commuter Rail
Freight Port
Public Transportation
Railroad


